詳細資料

建設公司

EASTONE 26 AVE LLC

建案類型

華廈

登記用途

住家用

總面積

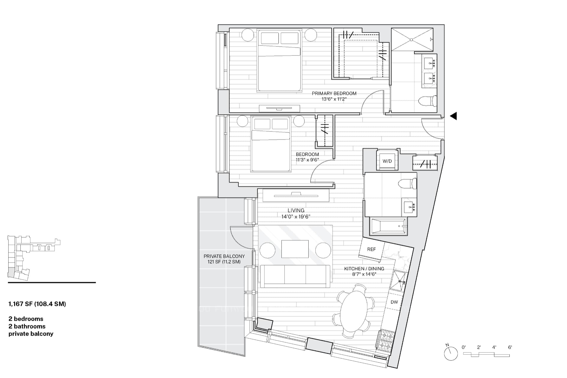
33 坪 (1167 平方英呎)

土地 (持分) 坪數

-

警衛管理

管理費

910

車位類型

1 / 坡道平面

公共設施

接待大廳、24 小時門房、住戶儲藏間、頂樓露台、信件/包裹室、住戶交誼廳、健身房、停車位、戶外休閒空間、中庭、自行車停放區、商務共用空間、共用餐飲區

1 坪 = 35.5832 平方英呎。美國物件原面積單位為「平方英呎」,轉換成「坪」會有些許落差。

物件特色

東河水岸景觀

曼哈頓天際線視野

高端建築設計

社區人文氛圍

住宅設計強調 開闊格局與高效空間運用,全室採大面窗景與充足採光,衣櫃收納空間寬裕。訂製廚房與衛浴 結合科技與現代優雅風格:廚房配置 Bosch 高端家電、木質系統櫃與石英岩檯面,兼具美學與實用性;衛浴採用 Kohler 衛浴設備、木質檯面與大型收納鏡櫃,細節講究且功能齊備。 建案座落於 東河河畔靜謐街區,介於 Astoria 與 Long Island City 熱鬧商圈之間,擁有極佳自然採光與綠意環境,可遠眺河景與曼哈頓天際線。周邊生活機能完善,步行可達 Vernon Boulevard 自行車道,鄰近 Socrates Sculpture Park、Noguchi Museum 及 Museum of the Moving Image 等藝術文化地標。 全案共 9 層樓,規劃 122 戶豪華住宅,提供多重採光面向與多元戶型選擇。臨河戶別享有開闊視野,部分戶型配備超大私人露台,可遠眺城市與水岸景致,沉浸於自然與城市交會的生活節奏之中。 建築內外公共設施總面積逾 9,000 平方英尺(約261坪),分布於 3 層樓,提供多元休閒與社交空間。2 樓設有專業健身房、住戶交誼廳、共用工作空間與配備 BBQ 設施及座位區的露台;頂樓露台則可飽覽城市景觀,並設有共享用餐與休憩空間。大樓另備汽車停車位、自行車停放區與私人儲藏間,提供住戶更完善的便利生活。 此案不僅以精緻設計與豐富公設著稱,更以地段與景觀優勢,體現紐約東河水岸生活的現代典範。

交通

學校

超市

娛樂

醫院

公司

Riverwalk crossing luxury apartments

2.3 公里

9 分鐘

Champion parking 90

2.4 公里

23 分鐘

Lexington av/63 st

2.8 公里

14 分鐘

Hunterspoint avenue

3.4 公里

13 分鐘

5 av/59 st

3.4 公里

18 分鐘

Long island city

3.8 公里

14 分鐘

Insomnia cookies

4 公里

26 分鐘

Regus - new york city - chrysler building

4.1 公里

21 分鐘

Grand central terminal

4.1 公里

22 分鐘

Grand central terminal

4.1 公里

22 分鐘

Grand central-42 st

4.2 公里

20 分鐘

Mta new york city transit - laguardia bus depot

4.3 公里

14 分鐘

Dock parking at 90 park avenue

4.5 公里

19 分鐘

90 st-elmhurst av

5.5 公里

21 分鐘

更多交通資訊

預設交通:步行超過 15 分鐘,以車程顯示

房貸試算

寬限期後每月償還本息

$0元/月

30 年貸款總年限,4.879% 銀行利率(參考利率)

頭期款

$

%

紐約市皇后區|Astoria水岸景觀豪華公寓

Astoria, NY 11102

633124

開價

1,640,000美金

格局

2 房 2 廳 2 衛

總面積

33 坪 (1167 平方英呎)

樓層/樓高

6 樓 / 9 層

屋齡

2025 年

建案資訊

了解建案

Nancy

房產顧問|曾意婷 Nancy

聯絡我們

立即線上專人諮詢

電子信箱:info@funwoo.com.tw

客服電話:02-7752-3755

美國服務據點

  • 149 West 27th Street, 3rd Floor, New York, NY 10001

  • 10232 Northeast 10th Street, Unit 1505, Bellevue, WA 98004

  • 7404 W Buckhorn Trl, Peoria, AZ 85383

台灣服務據點

  • 台北市信義區松高路11號25樓
    統一國際大樓

  • 竹北市復興二路281號1樓
    新竹高鐵2號出口

  • 台中市西區館前路57號1樓
    全國大飯店

  • 雲林縣虎尾鎮永興路427號
    雲林高鐵站1號出口